Homewood Plantation (Natchez, Mississippi)
| Homewood Plantation | |
|---|---|
![]() Homewood Mansion in 1936 | |
| General information | |
| Status | Burnt down in 1940 |
| Location | Natchez, Mississippi, U.S. |
| Completed | 1860 |
Homewood Plantation was a historic plantation with a mansion of the same name located on it in Natchez, Adams County, Mississippi. Built in 1860 as a wedding present for the Southern belle Catherine Hunt, the daughter of planter David Hunt, the mansion remained unscathed during the American Civil War of 1861-1865. By the early twentieth century, it was used as a shooting location for 1915 classic film The Birth of a Nation. The mansion burnt down in 1940.
Location
Homewood was located north of the Natchez, Mississippi city limits on Pine Ridge Road.[1]
History
Homewood was the antebellum plantation home of William S. Balfour and his wife, Catherine Hunt.[2] It adjoined Catherine's sister Charlotte's Lansdowne Plantation.[2] The 600 acre Homewood Plantation was a wedding gift to William and Catherine from Catherine's millionaire, planter father David Hunt.[3] William S. Balfour's father, William L. Balfour of Madison County, Mississippi, was one of the richest Mississippi antebellum planters.[3] He was a founder of the Mississippi College at Clinton.[3] James Buchanan had picked him to run as his vice-president in the 1857 presidential election; however, he died before the election.[1]
William and Catherine's mansion on Homewood Plantation was the suburban Natchez equal of nearby Stanton Hall, which was in the town of Natchez.[4] The mansion, designed by Scottish architect James Hardie, took the five years from 1855 to 1860 to build.[5][6] While it was being built, William and Catherine lived on his Issaquena County, Mississippi Plantation.[3] They moved to Homewood in 1860 with their six children.[2] During the American Civil War of 1861-1865, William served in the Confederate States Army as a Major, and Catherine left by carriage with her children for about one year, moving from place to place.[2] The family returned after the war to find that Homewood was intact.[2] Without the slave labor from before the war, the Balfour's wealth began to decline.[2] Generally, Catherine and her siblings used Cincinnati, Ohio real estate, inherited from her father David, mortgages on their plantations, and whatever else they had to support themselves after the war.[2]
The Balfours sold Homewood to Mr. and Mrs. William J. Kaiser of Natchez in 1907.[1][6] The Kaisers ran a dairy farm on the plantation.[1] Some scenes from the 1915 film The Birth of a Nation were made on the grounds and porches of Homewood.[5] Beginning in 1932 Homewood became well known, because it was on the annual Natchez Pilgrimage houses tour.[1]
When their children were grown, the Kaisers sold the mansion and 73 acres in 1937 to Mr. and Mrs. Swan of New York, who had visited Homewood on a Pilgrimage tour, for $35,000.[1][7] Mrs. Swan caused a lot of talk in Natchez.[1] She and her husband, who was much younger, spent huge sums modernizing the mansion and expanding the gardens during the last years of the Great Depression.[1] Their dogs slept on Beautyrest mattresses.[1] The mansion caught fire in 1940.[1] As it was burning to the ground, Mrs. Swan, with a bottle of whiskey in her hand, slowed the firemen's efforts by ordering them off the property.[7] People speculated that the Swan's intentionally burned the mansion.[7] The Swan's, however, collected $43,000 in damages from five insurance companies as a result of the fire and returned to live in New York.[7] The old antebellum kitchen dependency building, which survived the fire, has been remodeled for use as a residence.[7] The plantation was later sold to William D. Meriwether, Sarah J. Meriwether, and their children.The old carriage house, which also survived the fire, has been a residence and a clubhouse for the Natchez Country Club.[7]
Architecture

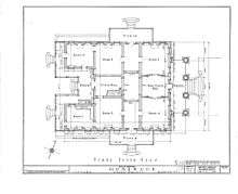
The Homewood mansion was about 72 by 96 feet.[1] It had five floors.[6] The basement had several rooms with fireplaces.[3] The first floor had six rooms.[1] The first floor rooms were divided by a center hall and a cross hall that ran just behind the two front rooms.[6] The library, front portion of the center hall, and the parlor could be combined into a 72 foot long ballroom, when the large solid mahogany pocket doors connecting them were opened, that stretched across the front of the house.[1][5] The second floor had a similar floor plan to the first floor.[1] The attic floor had a large center room surrounded by eight small storage rooms.[1][6] From the cupola and the adjoining widow's walk on top of the mansion, the town of Natchez could be seen in the distance.[1]
The mansion had two and one-half foot thick brick walls and thirty-five foot high, metal front porch columns with Ionic capitals.[2] The sidelight windows beside the front door had imported pink glass from Belgium.[8] Both sides of the mansion had two-story porches with metal lace-work railings.[2] The imported Cordovan marble fireplace mantles varied in color.[2][5] The library mantle was pink and grey.[8] The drawing room mantle was white.[8] The dining room mantle was pink with oxblood.[8] Each of the eight bedrooms had different shadings.[2] The interior doors were made of three inch thick mahogany.[8] A curved stairway with fan shaped steps and a black walnut railing was in the rear of the central hall and connected the first, second and attic floors.[8] A spiral staircase rose from the large center room of the attic to the cupola on top.[6]
A two-story kitchen flanked a rear corner of the mansion.[1] The grounds also contained a two-story carriage house made of brick.[1]
-

First Floor Center Hall of Homewood Mansion (1936)
-

Rooms Across the Front of Homewood Mansion on the First Floor (1936)
-

Spiral Stairway (attic to cupola) in Homewood Mansion (1936)
-

Rear of Homewood Mansion (1936)
References
- 1 2 3 4 5 6 7 8 9 10 11 12 13 14 15 16 17 18 Smith, Carolyn Vance (6 January 1985). "Mystery Shrouds the burning of Homewood". The Natchez Democrat.
- 1 2 3 4 5 6 7 8 9 10 11 Kane, Harnett T. Natchez on the Mississippi. New York: Bonanza Books. pp. 174–189.
- 1 2 3 4 5 Franks, Bob. "The Balfour Family". The Issaquena Genealogy and History Project. rootsweb/ancestry.com. Retrieved 20 October 2015.
- ↑ Miller, Mary Carol (2010). Lost Mansions of Mississippi. Jackson, Mississippi: Univ. Press of Mississippi. p. 15. ISBN 1617034215.
- 1 2 3 4 Moreland, George M. (January 18, 1925). "Rambling in Mississippi". The Memphis Commercial Appeal.
- 1 2 3 4 5 6 Matrana, Marc R. (2009). Lost Plantations of the South. Jackson: University Press of Mississippi. pp. 167–174. ISBN 978-1-57806-942-2.
- 1 2 3 4 5 6 Smith, Carolyn Vance (13 January 1985). "Mystery Surrounded the day of destruction". The Natchez Democrat.
- 1 2 3 4 5 6 Van Court, Catharine (1937). In Old Natchez. New York: Doubleday, Doran and Company. pp. 92–93.
External links
- / You Tube video with photos of Homewood
- Map of Natchez at Mississippi Department of Archives and History website shows Homewood Plantation at the top
- American Memory from the Library of Congress website in the Architecture topic has 18 images of Homewood mansion - some of which are floor plans
- Map showing the Balfour family's Issaquena County, Mississippi Plantation in the approximate center
_Corner_-_Natchez%2C_Adams_County%2C_Mississippi.jpg)