House of the Faun


The House of the Faun (Italian: Casa del Fauno), built during the 2nd century BC, was one of the largest and most impressive private residences in Pompeii, Italy, and housed many great pieces of art. It is one of the most luxurious aristocratic houses from the Roman republic, and reflects this period better than most archaeological evidence found even in Rome itself.[1]
History
The House of the Faun was built in the 2nd century BC during the Samnite period (200 - 80 BC).[2] There is evidence, most notably in the eastern walls of the tetrastyle atrium, that after the great earthquake in AD 62, the House of the Faun was rebuilt or repaired;[3] yet, the building was only used as a house from the 2nd century BC until AD 79, ultimately rendered unusable by the eruption of Mount Vesuvius. Although the eruption was devastating, the layers of ash covering the abandoned town preserved artworks, like the mosaics of the House of the Faun, which would have otherwise been likely destroyed or decayed due to the passage of time.
The House of the Faun was named for the bronze statue of the dancing faun located, originally, on the lip of the impluvium, a basin for catching rainwater; it has been moved to the center of the impluvium, as seen in the adjacent picture. Fauns are spirits of untamed woodland, which literate and Hellenized Romans often connected to Pan and Greek satyrs, or wild followers of the Greek god of wine and agriculture, Dionysus. It is purely decorative sculpture of a high order: "the pose is light and graceful," Sir Kenneth Clark observed,[4] the modeling well understood, the general sense of movement admirably sustained," though he missed in its suavity the stimulus of sharper contrasts to be found in Renaissance nudes.
Archaeologists discovered an inscription bearing the cognomen Saturninus, suggesting that the dwelling was owned by the important gens, or clan, Satria; a ring bearing the family name Cassius was also found, indicating that someone of the Cassii family married into the gens Satria and lived in the House of the Faun.[5]
The House of the Faun was initially excavated in 1830 by the German archeological institute.
Artworks

The House of the Faun contains the Alexander Mosaic, depicting the Battle of Issus in 333 BC between Alexander the Great and Darius III of Persia. This mosaic may be inspired by or copied from a Greek painting finished in the late fourth century BC,[1] probably by the artist Philoxenus of Eretria.[6] Unlike most Pompeian pavements of the late second and early first centuries, this mosaic is made of tesserae, and not the more common opus signinum, or other kinds of stone chips set in mortar.[7]
The Alexander Mosaic is complemented by other floor mosaics with Nilotic scenes and theatrical masks.[1] Other notable works of art from the House of Faun include an erotic Satyr and Nymph and the fish mosaic, a piece closely resembling other mosaics in Pompeii.[7]
Architecture

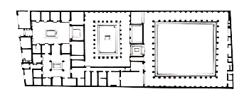
The House of the Faun covers nearly 3000 square meters and occupies an entire city block, or insula. The house can be divided into five major parts: the Tuscan atrium, peristyle atrium, service rooms and corridors, first, or Ionic, peristyle, and second, or Doric, peristyle, and their corresponding dependent rooms.[3] Like many ancient Roman houses, the House of the Faun had tabernae, or storefront shops, and a highly sophisticated building plan, which details the many rooms. The entrance is decorated by the Latin message “HAVE”, a greeting both for meeting and parting.[8]
Like other wealthy aristocrats of the Roman Republic, the owners of the House of the Faun installed a private bath system, or balneum, in the house. The bathing room was located in the domestic wing, which was to the right of the entrance, and along with the kitchen was heated by a large furnace.[1] The servants’ quarters were dark and cramped, and there was not much furniture.[9] The house features beautiful peristyle gardens, the second of which was created as a stage to host recitations, mimes, and pantomimes. Additionally, the house contained an entrance passage, a number of bedrooms (cubicula), dining rooms (triclinia) for both the summer and winter, a reception room (oecus), and an office (tablinum).[1]
Remains

Today visitors can still explore the remains of the House of the Faun in modern Pompeii, along Via di Nola. Although most of the original artworks have been relocated to the National Archaeological Museum (Museo Archeologico Nazionale) in Naples, the most famous pieces, like the Dancing Faun and the Alexander Mosaic, have been recreated to give tourists a clearer picture of what the house was originally like.[10] Pietro Giovanni Guzzo, one of Pompeii’s past archaeological superintendents, explained, “I want visitors to have the impression that they are entering the same luxurious house in which the ancient Pompeian owners lived before it was destroyed by the eruption of Mount Vesuvius in AD 79.”[10]
See also
Gallery
- Mosaic with a Nile Scene

Opus Sectile in vestibulum
References
- 1 2 3 4 5 Grant, Michael; Kitzinger, Rachel (1988). Civilization of the ancient Mediterranean: Greece and Rome. New York: Scribner's. ISBN 0-684-17594-0.
- ↑ Cambridge Ancient History. [New] ed. London: Cambridge University Press, 1970.
- 1 2 Dwyer, Eugene J. (2001). "The Unified Plan of the House of the Faun". Journal of the Society of Architectural Historians. 60 (3): 328–343. doi:10.2307/991759. JSTOR 991759.
- ↑ Clark, The Nude: A Study in Ideal Form 1956:263 (illustrated fig. 145).
- ↑ Gordon, Mary L. (1927). "The Ordo of Pompeii". Journal of Roman Studies. 17: 165–183. doi:10.2307/296132. JSTOR 296132.
- ↑ Pliny the Elder, Natural History xxxv. 10.36§ 22.
- 1 2 Westgate, Ruth (2000). "Pavimenta Atque Emblemata Vermiculata: Regional Styles in Hellenistic Mosaic and the First Mosaics At Pompeii". American Journal of Archaeology. 104 (2): 255–275. doi:10.2307/507451. JSTOR 507451.
- ↑ "Perseus Digital Library".
- ↑ Stillwell, Richard; MacDonald, William Lloyd; McAllister, Marian Holland (1976). The Princeton Encyclopedia of Classical Sites. Princeton, NJ: Princeton University Press.
- 1 2 Merola, Marco (2006). "Alexander, Piece by Piece". Archaeology. 59 (1).
Further reading
| Wikimedia Commons has media related to House of the Faun (Pompeii). |
- Butterworth, Alex; Laurence, Ray (2005). Pompeii: The Living City. New York: St. Martin's Press. ISBN 0-312-35585-8.
- Hornblower, Simon; Spawforth, Antony (1996). The Oxford Classical Dictionary (3rd ed.). Oxford: Oxford University Press.
- Little, A. M. G. (1935). "The Decoration of The Hellenistic Peristyle House in South Italy". American Journal of Archaeology. 39 (3): 360–371. doi:10.2307/498623. JSTOR 498623.
External links
Coordinates: 40°45′4.5″N 14°29′4.5″E / 40.751250°N 14.484583°E