House plan

A house plan is a set of construction or working drawings (sometimes still called blueprints) that define all the construction specifications of a residential house such as dimensions, materials, layouts, installation methods and techniques.
Drawing Set
The principal information provided in set of house drawings are as follows:
- Site plans are drawn to show the location of a home on the property in its context. It is an overhead view of the construction site and the home as it sits in reference to the boundaries of the lot. Site plans should outline location of utility services, setback requirements, easements, location of driveways and walkways, and sometimes even topographical data that specifies the slope of the terrain.
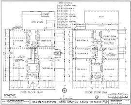
- A floor plan is an overhead view of the completed house. You'll see parallel lines that scale at whatever width the walls are required to be. Dimensions are usually drawn between the walls to specify room sizes and wall lengths. Floor plans will also indicate rooms, all the doors and windows and any built-in elements, such as plumbing fixtures and cabinets, water heaters and furnaces, etc. Floor plans will include notes to specify finishes, construction methods, or symbols for electrical items.
- Elevations are a non-perspective view of the home. These are drawn to scale so that measurements can be taken for any aspect necessary. Plans include front, rear and both side elevations. The elevations specify ridge heights, the positioning of the final fall of the land, exterior finishes, roof pitches and other details that are necessary to give the home its exterior architectural styling.
- A section cuts through the dwelling and the location of this 'cut through' is noted on the floor plan. It describes how the building will be constructed and discusses how the internal finishes are to look. Sections are used because they explain certain conditions in more detail. These conditions may include ceiling height, ceiling type (flat or vault), and window and door dimensions.
- Foundation plan, including dimensions and locations for footings.
- Framing plan, for wall, including the size of the lumber to be used - usually 2x4 or 2x6.
- The Sub-floor Plan gives details of how this area will be constructed and how services will be arranged.
- Roof plans, including type, pitch and framing.
- Interior elevation drawings (interior walls).
- Detail drawings, such as built-in shelving, moldings, and columns.
- Schedules for elements such as windows and doors.
- Structural layouts.
- Electrical and telecoms drawings: show locations of all the outlets, TV sockets, switches and fixtures. Also indicates which switches operate which lights, and where the electric lines should be run,.
- Plumbing schematic drawing: plumbing fixtures and piping.
Lines and symbols
House plans use the following lines and symbols to convey the relationship between objects:
- Dimension lines, which consist of a solid line with a mark at either end; space between the two marks equals the distance noted next to the line.
- Wall : one uses thick solid lines for walls.
- Partial height wall, low wall that doesn't go all the way to the ceiling.
- Thin solid lines are used for built-in structures (such as cabinets, bookshelves, or plumbing fixtures).
- Thin dotted lines indicate overhead features, such as wall cabinets in a kitchen or a special ceiling treatment or an archway in the living room.
- North arrow
- Doors:
- Door swing
- Bifold doors
- Passage (hinged) doors
- Sliding glass door
- Window
- Toilet
- Bathtub
- Shower
- Bathroom sink
- Kitchen sink
- Kitchen range
- Refrigerator
- Washer/Dryer
- Tree
- Shrub
Spaces and rooms
House plans generally include the following features, depending on the size and type of house:
- Patios, terrace or veranda
- Garage
- Formal dining room
- Porch
- Bedroom
- Bathroom
- Kitchen
- Breakfast nook
- Living room
- Fireplace
- Basements
- Offices
- Closets
- Den (study)
- Attics
- Hallways, Vestibule
- and other interiors
Open floorplan
An open floorplan is one which values wide, unenclosed spaces. They are made possible by curtain wall technology, engineered lumber and truss systems, and thoughtful structural design which allow for larger clear-spans than formerly possible in residential construction.
An open floor plan limits or excludes walls separating the main living areas of the house (living room, dining room, kitchen) to allow for entertaining or interaction between family.
External links
| Wikimedia Commons has media related to House plans. |