Hydrological modelling
Hydrologic models are simplified, conceptual representations of a part of the hydrologic cycle. They are primarily used for hydrologic prediction and for understanding hydrologic processes. Two major types of hydrologic models can be distinguished:
- Stochastic Models. These models are black box systems, based on data and using mathematical and statistical concepts to link a certain input (for instance rainfall) to the model output (for instance runoff). Commonly used techniques are regression, transfer functions, neural networks and system identification. These models are known as stochastic hydrology models.
- Process-Based Models. These models try to represent the physical processes observed in the real world. Typically, such models contain representations of surface runoff, subsurface flow, evapotranspiration, and channel flow, but they can be far more complicated. These models are known as deterministic hydrology models. Deterministic hydrology models can be subdivided into single-event models and continuous simulation models.

Recent research in hydrologic modelling tries to have a more global approach to the understanding of the behaviour of hydrologic systems to make better predictions and to face the major challenges in water resources management
Groundwater modelling

Groundwater models are computer models of groundwater flow systems, and are used by hydrogeologists. Groundwater models are employed to simulate and predict aquifer conditions.[1]
Surface water modelling

Runoff model (empirical)
These models use an empirical method to convert rainfall volume into runoff volume. An example is the Curve Number method.[2]
The runoff curve number (also called a curve number or simply CN) is an empirical parameter used in hydrology for predicting direct runoff or infiltration from rainfall excess. It can be used with a unit hydrograph to derive the runoff rate from the direct runoff by convolution.
Runoff model (reservoir)
These models describe rainfall-runoff relations using the concept of a (non)linear reservoir.[3] Examples include: Vflo.
Hydrological transport model
These models describe the flow and routing of water once it has entered a river/stream system and the transport of dissolved or suspended material and debris in a river/stream.[4] Examples include MIKE 11, MOHID, WAFLEX and DSSAM.
Distributed hydrological model
Distributed hydrological models are grid-cell based and take into account the spatial variability of meteorological input and other inputs like terrain, soils, vegetation and land use. In distributed hydrological models runoff generated in a grid cell is transported downstream through a grid cell to grid cell network using the local drain direction of each grid cell. Examples of distributed hydrological models are PCR-GLOBWB, DHSVM, HL-RDHM and the glacio-hydrological SPHY model
Composite models
Many models combine two of these types, for example HBV, which is combines an empirical runoff model and a hydrological transport model. Some models combine elements of surface water models and groundwater models, for example GSSHA, MIKE SHE, WEAP and RS MINERVE.
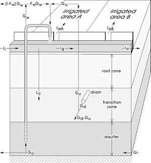
Agricultural hydro-salinity modelling
Agricultural hydro-salinity models like SaltMod,[5] Swatre [6] and Drainmod [7] are models integrating hydrological factors like irrigation, evapotranspiration and groundwater flow to simulate the behavior of the water table and soil salinization and to assess agricultural engineering measures like watertable control and soil salinity control by subsurface drains, drainage by wells and salt leaching.
SahysMod [8] is a polygonal combination of SaltMod with a groundwater model.
See also
- Surface runoff
- Hydrology (agriculture)
- Aquifer
- Groundwater model
- Watertable control
- Water quality
- Soil salinity control
- International trade and water
- WaterGAP global hydrological and water use model
References
- ↑ Rushton, K.R., 2003, Groundwater Hydrology: Conceptual and Computational Models. John Wiley and Sons Ltd. ISBN 0-470-85004-3
- ↑ United States Department of Agriculture (1986). Urban hydrology for small watersheds (PDF). Technical Release 55 (TR-55) (Second ed.). Natural Resources Conservation Service, Conservation Engineering Division.
- ↑ RainOff a rainfall-runoff model based on the concept of a nonlinear reservoir.
- ↑ Vijay P. Singh,, Computer Models of Watershed Hydrology, Water Resource Publications, pgs. 563-594 (1995)
- ↑ "SaltMod: A tool for interweaving of irrigation and drainage for salinity control". In: W.B.Snellen (ed.), Towards integration of irrigation and drainage management. Special report, pp. 41–43. International Institute for Land Reclamation and Improvement (ILRI), Wageningen, The Netherlands. On line:
- ↑ Swatre agro-hydro-salinity model
- ↑ Drainmod agro-hydro-salinity model
- ↑ Polygonal agro-hydro-salinity-groundwater model SahysMod