Ivanhoe House


Ivanhoe House[1][2] is a house designed by Kirsten Thompson architects,[3] located in Ivanhoe, a verdant suburb in Melbourne, Australia. Construction of the house was completed in 2008. The house is distinguished from standard twentieth century courtyard houses by its elevated nature. This creates a courtyard which is both on the ground and in the upper level of the house, forming a gateway into the garden and the wider context of the park. “This house was heavily on local arts and crafts traditions, In particular the work of Harold Desbrowe-Annear, a key reference point because of his profound influence on the architectural legacy of Melbourne and here in Ivanhoe”. –Kerstin Thompson
Description
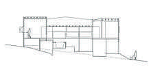
The Ivanhoe House is situated in the leafy green suburb of Ivanhoe, North East of Melbourne’s city centre. Its site overlooks Chelsworth Park to the south, and has no real street frontage to the North, as the land subdivision itself is a triple battle axe. The house is of a courtyard type, but can also be described as a ‘perimeter house’. Its main point of difference from a regular courtyard house is its elevated construction, informed by the raised floodplain levels of its Ivanhoe site. The form of the house is a roughly square plan, surrounding an internal courtyard which spans 2 levels. Planned around this courtyard, a string of rooms in a loop allows inhabitants to walk all the way around the house. There are no set corridors, and flexible walls create a flexibility of space. Construction incorporates a steel framed structure on stilts that is sometimes exposed within the villa, and a taught black wooden skin, as well as louvered windows and semi-timbered openings. Materiality mostly consists of timber, from indoor to outdoor, but different wood species and stains are used to differentiate space and program.
Design and influences
Kerstin Thompson architects drew on the local historical context of Ivanhoe, as well as several famous courtyard houses as informants for this house. Harold Desbrowe-Annear’s 3 Chadwick Houses (1903), examples of the Arts and Crafts architectural movement in Melbourne, form a reference for Thompson’s house. This is evident in the taut, black timber skin offset by natural timber louvers and extended bumps in the exterior that correspond to program of interior spaces. Built in furniture, such as window seating, is also drawn from Desbrowe-Annear’s houses, but are characteristic of Kirsten Thompson’s previous work. The house incorporates influences from Edmond and Corrigan in its planning. Specifically their Athan House (1988) can be seen in the angled geometries and split corridors of the Ivanhoe house. The linear and sequential organization of space, forming a square concentric plan enclosing the courtyard recalls the Grounds House in Toorak, Melbourne, by Roy Grounds (1954). The level changing of the house allows the visitor to enter through the courtyard, instead of locking the courtyard in the middle of the house with no connection to the exterior landscape. There is no bedroom wing in the house; instead the 3 bedrooms sit apart from each other with services and closets sitting in between the rooms. The rooms are located on the north side of the house, allowing them to receive northern light, and also face out onto the central, bi-level courtyard. Living areas face south, directly over Chelsworth Park, but receive northern light through openings to the courtyard to the north.
References
- ↑ A Place in the Sun, Stuart Harrison, Thames and Hudson (Australia) Pty Ltd, Melbourne, 2011, p. 20-22.
- ↑ The Australian House, Anna Johnson, Patrick Bingham hall,Pesaro Publishing (Australia), Balmain, 2008, p. 40.
- ↑ "Kerstin Thompson Architects". Kerstinthompson.com. Retrieved 2013-11-07.