RMIT Building 8
| RMIT Building 8 | |
|---|---|
![]() Swanston Street frontage of Building 8 | |
| General information | |
| Type | Education |
| Architectural style | Postmodern |
| Address | 383 Swanston Street |
| Town or city | Melbourne, Victoria |
| Country | Australia |
| Completed | 1993 |
| Owner | RMIT |
| Technical details | |
| Floor count | 9 |
| Lifts/elevators | 3 |
| Design and construction | |
| Architecture firm | Edmond and Corrigan |
| Awards and prizes | RAIA, 1995 - Walter Burley Griffin Award for Urban Design, Victorian Chapter Award for Institutional Alterations & Extensions, Victorian Chapter Medal; City of Melbourne, 1995 - Award for Institutional Buildings |
RMIT Building 8 is an educational building, part of the RMIT University's City campus in Melbourne, Victoria. It sits at 383 Swanston Street, on the northern edge of the Hoddle Grid that defines Melbourne's city center.
Completed in 1993, by Edmond & Corrigan Pty Ltd in association with The Demaine Partnership,[1] Building 8 is an example of architecture in the Postmodern style.
Description
Standing 9 storeys tall, the building has a colourful postmodern facade that incorporates various elements such as stone of various colours, exposed piping and struts, as well as polychromatic brickwork of various shapes. Visually, Building 8 also shares a similar aesthetic to other buildings Peter Corrigan has designed, such as his Athan House[2] as well as the Victorian College of the Arts[3]
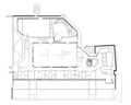
While Building 8's front facing facade opens out into Swanston Street, its rear entrance connects it to Bowen Street, the primary thoroughfare running through the campus. Its rear facade is similarly decorated as well, a concrete face interspersed by coloured windows, and protrusions consisting of several windows and a service core. On the interior, the building shares much of the aesthetic that comprises its exterior, eschewing a traditional rectangular plan in favour of a more chaotic, polygonal layout. Its details are finished in a similar polychromatic, postmodern fashion. While the floors in Building 8 are relatively uniformly stratified, studios on the top floor have double or triple heighted ceilings to introduce a greater sense of space. Likewise, several rooms such as the lecture theatre and Swanston Library span several floors within the building.
As part of the RMIT City campus, Building 8 houses many university functions, containing the Swanston Library, Student Union, and schools of Architecture, Interior Design, Landscape Building, Planning & Policy, Fashion, and Mathematics.[4] In addition, it also contains facilities such as workshops, computer and photography labs, as well as access to rapid prototyping equipment. While the building is open to the public, use of services such as printing or library loans may require the use of a student issued identity card. Similarly, access doors to and within Building 8 may be locked outside of office hours, requiring an identity card to unlock. Building 8 is serviced by three lifts as well as a combination of staircases and escalators, and was also constructed over the top of the existing Union Building. As the Union Building was already showing signs of load failure, this called for the creation of a special light-weight granite curtain wall facade in order to minimize weight as much as possible.
From left, RMIT Building 8, Storey Hall (RMIT Building 16)
Building 8, rear facade.
Floor plan of level 12.
Interior photograph showcasing Building 8's polychromatic windows.
Interior photograph of Building 8's lift lobby. Note the design of interior lighting fixtures and tiling on the column.
Rear entrance of Building 8, as viewed from Bowen Street.
Key influences and design approach
As an example of Postmodern architecture, Building 8, in particular its facade, is a combination of various design elements borrowed from Melbourne's history. From Walter Burley Griffin, to Melbourne's Manchester Unity Building and Block Arcade, Building 8 is a pastiche of various influences.[5] Colour is used liberally as well, setting it apart from the more reserved condition of existing buildings lining Swanston Street. As described in an architect's statement,
The building's front, side and rear elevations create a whole from fragments and a collage of design 'ideas'. It presents itself to the city on its own terms."[6]
Awards
- RAIA Walter Burley Griffin National Award for Urban Design, 1995
- RAIA Vic Chapter Award for Institutional Alterations & Extensions, 1995
- RAIA Vic Chapter Medal, 1995
- City of Melbourne Award for Institutional Buildings, 1995.
References
- ↑ http://www.demaine.net/Projects/1066380839859-9774/item/1066376359006/RMIT-BUILDING-8
- ↑ http://aardvark.tce.rmit.edu.au/aardvark3/area-i/ECathanh/home.htm
- ↑ http://www.architecture.com.au/awards_search?option=showaward&entryno=20043023
- ↑ http://www.architecture.com.au/awards_search?option=showaward&entryno=19953040
- ↑ http://www.walkingmelbourne.com/building366_rmit-building-8.html
- ↑ http://architecture.rmit.edu.au/About/Building_8.php
- http://architecture.rmit.edu.au/About/Building_8.php
- http://www.demaine.net/Projects/1066380839859-9774/item/1066376359006/RMIT-BUILDING-8
- http://www.architecture.com.au/awards_search?option=showaward&entryno=19953040
- http://www.walkingmelbourne.com/building366_rmit-building-8.html
- http://aardvark.tce.rmit.edu.au/aardvark3/area-i/ECathanh/home.htm
- http://www.architecture.com.au/awards_search?option=showaward&entryno=20043023
External links
| Wikimedia Commons has media related to RMIT Building 8. |
Coordinates: 37°48′31″S 144°57′49″E / 37.808663°S 144.963647°E
