Thorcon
Thorcon is a project for a modular molten salt nuclear reactor. It is proposed by Martingale of Florida in the United States of America;[1] a prototype is planned for 2020.[2] In December 2015, Thorcon signed a Memorandum of Understanding (MOU) with the Indonesia Thorium Consortium to develop its molten salt reactor technology in Indonesia.[3]
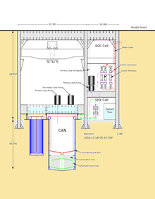
Technical

ThorCon takes the original ORNL Molten Salt Reactor design and scales it up without relying on new research.
The proposed reactor design uses a mixture of sodium fluoride and beryllium fluoride as carrier, with uranium and/or thorium fluoride salt as the fuel charge dissolved in the carrier salt.
Thorcon uses modular sealed nuclear-grade stainless steel containment units called "cans". There are two for each reactor so that one unit can be operative while the previous, spent module can cool down for 4 years, after which it is removed and replaced with a new one.



Safety
Thorcon is a walk-away safe plant design. This implies that no operator action, electricity supply, support system or coolant injection is needed in the event of an accident. The Thorcon system relies heavily on inherent safety and passive safety.[4]

ThorCon is a simpler and smaller structure than today's large ships that are rapidly manufactured in large numbers by many shipyards in the world today.
See also
References
As of this edit, this article uses content from "Official Site", which is licensed in a way that permits reuse under the Creative Commons Attribution-ShareAlike 3.0 Unported License, but not under the GFDL. All relevant terms must be followed.
- ↑ "Martingale reveals its ThorCon liquid-fuel reactor design". World Nuclear News. World Nuclear News. Retrieved 6 April 2015.
- ↑ "Molten Salt Reactors". World Nuclear Association. World Nuclear Association. Retrieved 9 April 2015.
- ↑ "Indonesia and ThorCon to Develop Thorium MSR". International Thorium Energy Organization (IThEO). Retrieved 12 January 2016.
- ↑ "ThorCon: A Thorium Molten Salt Reactor System that can be built Now -by Lars Jorgensen @ TEAC7". YouTube. Retrieved 12 January 2016.
Further reading
- Presentation notes from Devanney at Virginia Commonwealth University