Wolfe Manor
| The Wolfe Manor In Clovis, CA | |||
|---|---|---|---|
![]() The 2005 street view of Wolfe Manor that includes the concrete wall that was later removed. | View of the Wolfe Manor in Clovis, CA from the property. | ![]() Picture taken in 2001, some of the patient beds that were part of the "Scream If You Can" attraction at Wolfe Manor. | The cast of "The Haunted Wolfe Manor Live" a weekly web show that was broadcast from the mansion in 2008 and 2009. |
The Wolfe Manor (Originally known as the Andrews Estate, Later the Clovis Avenue Sanitarium)[1] was a turn of the century mansion located in Clovis, California.
Once located on Clovis Avenue, Wolfe Manor stood in all of its spooky, abandoned glory. Well known for being a haunted spot, Wolfe Manor was investigated by ghost hunters and mediums from around the country and was featured on “My Ghost Story,” “Ghost Hunters,” “Ghost Adventures,” and “Mystery Quest,” bringing national attention to Clovis.[2]
The Manor got its unwholesome reputation after years of being run and operated as a sanitarium and convalescent home where, at one point, death was a constant. Once in tatters, with broken windows boarded up by plywood and surrounded by a chain link fence,[2] the once opulent manor is now demolished.
Beginnings
Italian immigrant, Anthony Andriotti, originally built the mansion in 1922 as a private residence. It is likely that the house was built from a Magnolia Sears Home Kit that was brought over by train. This is indeed a possibility as the mansion is located very near to where the trains used to run. The construction of the mansion took both time and money to complete without any help from modern technology and tools.[2]
According to Historian, Terry Campbell, Anthony Andriotti, who later changed his name to "Anthony Andrews", built the lavish 8,000 square foot home in a desperate urge to “keep up with the Jones.” “There were murals on the ceiling and the basement had a swimming pool,” Campbell said. The mansion also included a magnificent ballroom and five bedrooms. The grandeur of the home proved to be beyond Andriotti’s means and he became financially decimated soon after breaking ground.[2]
The newly built home was lost in 1926, only four years after its original construction. The Andriotti story ends even more sadly when, at the age of 36, he died of cirrhosis of the liver, due to what family members recall as his problem of “always being with the bottle,” Campbell found. His body was buried at The Holy Cross Cemetery off Belmont Street under his adopted name, Andrews.[2]
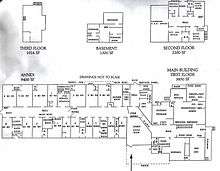
| The Clovis Sanitarium | ||
|---|---|---|
![]() An old advertisement of the sanitarium that was operating on the Wolfe Manor property. | A view of the Wolfe Manor in Clovis, CA. | ![]() The floor plan for the Clovis Sanitarium/Nursing Home complex that includes the mansion and the attached hospital wing. |
From Private Residence to a Place of Death
In 1935 the mansion acquired new ownership and was transformed into the Hazelwood Sanitarium. The mansion was now a place to help treat people with terminal illness. During this time, many people died in the sanitarium of tuberculosis. Interestingly, both death and life occurred during this time. “People were born in there, there are birth certificates that prove this,” Campbell said. In 1942 the mansion changed hands and became the Clovis Avenue Sanitarium and in the 1950s it became licensed by the Department of Mental Hygiene. “In 1954 a hospital wing was added to the house where they treated mental disorders,” Campbell notes.[2]
“There were rumors of patients laying in the hallways naked or being tied to a toilet or bed,” Campbell said. “Also, at one time there were 20 patients to one nurse.” There was so much overcrowding, that in every nook and cranny there was a bed. Talk of suicide and murder also surrounded the manor. “The basement was a temporary body storage where up to eight bodies would be stored until someone came to pick them up,” Campbell said.[2]
Granted, health standards were not as high as they are today. Still, those devastations are now considered a black spot on Clovis history. Moreover, many believe they are the cause for the paranormal activity which now occurs in the manor today. “Such a dark and tragic history lends itself to paranormal happening,” Campbell said. In 1992 the Clovis Avenue Sanitarium was shut down and the manor closed indefinitely.[2]
Scream if You Can
In 1996 the mansion took another shift when local entrepreneur, Todd Wolfe, transformed the residence into the infamous “Scream If You Can” haunted attraction location. The tours would take place every night for two and a half weeks surrounding Halloween. “When I first started, I just rented it for a Halloween attraction,” Wolfe notes. Later, in 1997 he was offered to buy the property and Wolfe agreed.[2]
Despite such a gloomy past, the manor was now surprisingly prospering as a Halloween attraction. Knowing nothing of the property which he now owned, Wolfe was disturbed to start experiencing that which could only be explained as paranormal experience. He began to feel he was not alone in the house saying, “Things started happening, but I didn’t want to tell anybody. One time, I felt a breath of air on my neck and another I was touched on my lower back.” Once a cast member of “Scream If You Can” was pulled backwards into an empty room, Wolfe could not deny what he already knew; Wolfe Manor was haunted.[2]
Wolfe finally allowed a psychic into the home for an inspection and it was found that the manor was full of paranormal activity. Mediums and ghost hunters fled to Clovis for a closer inspection of what was now being called one of the most haunted spots in the western United States. The news that Wolfe Manor was a paranormal hot spot, instantly added more integrity to the Halloween-themed haunted house and gave a more genuine experience to the “Scream If You Can” patrons.[2]
The screaming stopped in 2004 though, when “Scream If You Can” was forced to shut down. Later, Wolfe found that noise complaints from disgruntled neighbors were what caused the haunted tours to end. A defining blow to Todd Wolfe, he continued to try to get the city to change their mind and reopen the attraction.[2]
Hauntings
Wolfe Manor has become a landmark paranormal location in the Western United States and attracts researchers from all over the nation. People have experienced contact with the unknown by being physically touched, collecting EVP recordings (easily hundreds), photographic and video evidence, witnessing disembodied voices and actually seeing full blown apparitions.[1] The building was featured on paranormal TV shows, such as Ghost Hunters[3] and Ghost Adventures.[4]
The State Of Decay In Its Final Years
A haunted house is supposed to be scary, but Clovis city officials say the Wolfe Manor on Clovis Avenue is in such terrifying condition that it frightens them. The city says owner Todd Wolfe can either make repairs or demolish the 91-year-old house. The city's Board of Appeals declared the vacant house at 2604 Clovis Ave. a nuisance and a danger after finding 22 building code violations in the house and surrounding property.[5]
In an August, 2013 decision responding to Wolfe's appeal, the city described the structure as "unsightly and in a state of disrepair." Inside, the roughly 5,000-square-foot house has excessive "cracking, peeling, chalking, dry rot and warping." It is in violation of fire, building and electrical codes and lacks plumbing. It also has broken and missing windows, and its fence is falling down, city documents state.[5]
In 2011, Clovis designated the house as "unsafe to occupy." Because it's a "dangerous building," any fires or police service calls could be billed to Wolfe, city documents said. The Fire Department has put out blazes on the property, and Clovis police reported 96 calls since 2008. With such a high number, the house is near the top of the Clovis "hot spots" list, locations that produce the highest number of public safety responses. Jon Gamoian, who lives on the site to keep the house secure, said fewer unwanted visitors are showing up since he started watching the house in 2012. "It's been months since someone has broken into the house," he said. City officials say the house does not have to be demolished, but they want Wolfe to make progress to correct the violations.[5]
His final recourse is to file a civil suit against Clovis in Fresno County Superior Court. It will cost Wolfe $250,000 to demolish the house — that's what he paid to buy it in 1997 — because the lead-based paint and asbestos will require encapsulating the home for the tear down, he said.[5]
But city officials have grown dubious that the house will ever be restored. "We have been hearing the story that something is right around the corner for five years now," said Mike Despain, Clovis Fire Department chief. The building is in such a state of disrepair that firefighters are ordered not to go inside if the house catches fire. "The house is collapsing on itself," Despain said. "We are at a juncture where he has to put some money into it to keep it safe."[5]
Demolition
Finally frustrated with the owner's failure to act, the City of Clovis declared the structure an "attractive nuisance" and has set November 3, 2014 as the deadline for the owner to remove anything he wishes to keep from the property. The city would then begin demolition. The City Manager estimates the cost of the demolition to be around $30,000, and plans to file a lien on the property to recover it from the owner.[6]
The mansion that stood for 92 years, was demolished on Saturday November 8, 2014. Many in the community went out to catch a last glimpse of the mansion. It can be argued that no one fought harder for the life of the manor, than owner Todd Wolfe. The walls of his manor, came crashing down, not only literally, but also in Wolfe's heart. He said he was going to skip watching the demolition, but decided to join the crowd of supporters. He said he needed nearly $750,000 to keep the house up to city code. But, he said he couldn't afford it. Todd previously had said he was willing to donate the home, if someone was willing to move it off the property. He said he is going to start a new chapter, but does not know yet what he's going to do with the property.[7]
| Wolfe Manor Demolished | ||
|---|---|---|
![]() Tractor demolishes Wolfe Manor in Clovis, CA | ![]() As demolition continues, Todd Wolfe speaks to reporters. | ![]() The fireplace remains standing in the rubble of Wolfe Manor in Clovis, CA |
References
- 1 2 "Clovis, CA". Wolfe Manor Hotel. 2010-01-08. Retrieved 2012-02-06.
- 1 2 3 4 5 6 7 8 9 10 11 12 "Fresno Magazine". The Making of a Haunted Hotel By Stephanie Metzler. 2012-02-25. Retrieved 2014-02-03.
- ↑ "Ghost Hunters: Recycled Souls - Season 4, Episode 25". TV.com. 2008-11-19. Retrieved 2012-02-06.
- ↑ "Ghost Adventures: Clovis Wolfe Manor - Season 3, Episode 9". TV.com. 2011-10-11. Retrieved 2012-02-06.
- 1 2 3 4 5 "Clovis Independent". Run-down house haunts By Marc Benjamin. 2013-10-07. Retrieved 2014-02-03.
- ↑ "abc30 news". Haunted Wolfe Manor Mansion in Clovis To Be Demolished. 2014-10-21. Retrieved 2014-10-22.
- ↑ "yourcentralvalley.com". The Walls of Wolfe Manor Come Crashing Down by Connie Tran. 2014-11-08. Retrieved 2014-11-09.
| Property Names |
|---|
| Andrews Estate (1922-1935) |
| Hazelwood Sanitarium (1935-1942) |
| Clovis Avenue Sanitarium (1942-mid 1960's) |
| Clovis Nursing Home (mid 1960's-1992) |
| Andleberry Estate (1996-2007) |
| Wolfe Manor (2007–present) |
.jpg)
.jpg)




